
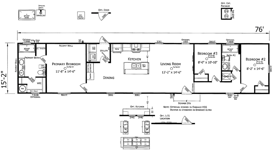
Embrace Ultra Series by Champion Homes Floor Plans
Standard Features
Construction
- Energy Star Certified
- Built to Wind Zone 2
- 5/8” T&G OSB Floor Decking
- Fiberglass Insulation: Floor R-22, Walls R-13, R-22 in Roof
- R-8 Insulated Overhead Ducts
- 8′ Sidewall – 2×4 Ext Walls 16” OC
- 2×6 Floor Joists in 14′ or 28′ Wides; 2 x 8 Floor Joists in 16′ or 32′ Wides, 16” OC
- Double Marriage Wall
- Finished Textured Ceiling
- OSB End Walls with House Wrap
- OSB Roof Sheathing
- Continuous Ventilation System
- Electric 40 Gallon Water Heater with Pan
- Detachable Hitches – 99 ½” Wide Chassis
Exterior
- 3 Tab Shingles
- Vinyl Lap Siding – White Corner Trim
- Hardie Fascia and Vinyl Soffit
- Ridge cap Ventilation
- 6/6 Vinyl Low-E Insulated Windows
- Shutters – Front Door Side
- 16′ Dormer
- 1 Exterior Hose Bib
Exterior Doors
- Craftsman Front Door W/Storm (Storm excluded on Porch Models)
- 80” Cottage Rear Door
Electrical
- 200 Amp Main Panel Box
- 1 Exterior GFI Standard
- Smoke Detectors Per Code
- Plumb and Wire for Washer & Dryer
- Dryer Vent Installed
- LED Can Lights T/O
- Exhaust Fans in Baths
- Exterior Lights at each Exterior Door
- Programmable Honeywell Thermostat
Interior
- ½” Horizontal Painted Drywall
- 2 Panel Doors with Black Hinges and Knobs T/O
- Floor Mounted Door Stops T/O
- Diamondflor Rolled Lino T/O W/Matching Transition Strip
- Ventilated Shelving in Closets
- Whole House Shut-Off
- 2 ¼” Cool Cedar Trim and Accents
Appliances
- 30” Basic Electric Range
- 18′ FF Refrigerator
- Dishwasher
- Plumb for Icemaker
- Stainless Appliances
Kitchen
- Mission Cabinet Doors – 6” Black Bar Pulls and Hidden Hinges
- Drawer Over Door Cabinets
- Vinyl Lined O/H Cabinets
- Stainless Sink
- Rolled Edge Laminate Countertops with Matching Backsplash
- Black Gooseneck Kitchen Faucet W/ Pull-Down Sprayer
- 40” Overhead Cabinets
- Matt Black 36” Vented Range Hood W/Light
Baths
- Mission Cabinet Doors – 6” Black Bar Pulls and Hidden Hinges
- Rolled Edge Laminate Countertops with Matching Backsplash
- Elongated Water Saver Commodes
- 36” Vinyl Lined Vanities
- 60” F/G Tub/Shower in Master Bath
- 60” F/G Tub/Shower in Hall Bath
- Black Metal Faucets for Sinks and Showers
- Rectangular China Bath Lavs -Mirror Above
WARRANTY
- One (1) Full year
- Merit 2-7 Warranty








